GB/T 24818.5-2009 起重機 通道及安全防護設施 第5部分:橋式和門式起重機
- 發表時間:2023-01-27
- 來源:共立消防
- 人氣:
1 范圍
GB/T 24818的本部分規定了由GB/T6974.1定義的橋式和門式起重機在通道及安全防護設施上的特殊要求,并給出了橋式和門式起重機在各種預期使用條件下相關設備的選用標準。
2 規范性引用文件
下列文件中的條款通過GB/T 24818的本部分的引用而成為本部分的條款。凡是注日期的引用文件,其隨后所有的修改單(不包括勘誤的內容)或修訂版均不適用于本部分,然而,鼓勵根據本部分達成協議的各方研究是否可使用這些文件的最新版本。凡是不注日期的引用文件,其最新版本適用于本部分。
GB 5226.2 機械安全 機械電氣設備 第32部分:起重機械技術條件(GB 5226.2-2002,IEC 60204-32:1998,IDT)
GB/T 6974.1 起重機 術語 第1部分:通用術語(GB/T 6974.1-2008,ISO 4306-1:2007,IDT)
GB/T 24818.1-2009 起重機 通道及安全防護設施 第1部分:總則(ISO 11660-1:2008,IDT)
3 通道
3.1 總則
本條是對通往安裝在高架或地面軌道上的橋式和門式起重機的工作通道,以及對這一類型起重機日常和緊急維護、修理的通道要求。
3.2 廠房內或高架軌道上的橋式起重
3.2.1 通往起重機的通道平臺
在司機室內操縱的橋式和門式起重機應將供司機出入的通道平臺固定在起重機的支承結構上。表1給出的推薦的通道形式,應符合GB/T 24818.1--2009中的表6給出的通道形式和尺寸。
表1 推薦的通道形式
通道距地面高度/m | 推薦的通道形式 |
1~15 | 樓梯 斜梯 直梯 |
15~25 | 樓梯 |
>25 | 電動通道 樓梯 |
3.2.2 通道平臺
通往起重機的正常通道應從通道平臺進出。通道出入口應采用以下自行關閉裝置加以保護,如:-內開式板門或柵欄門;
——上下或左右推拉門;
——垂直鉸接護欄。
通道平臺與相應的起重機平臺的高低差應在10mm之內,或搭接成高度在180mm~250mm范圍內的臺階。
通道平臺與相應的起重機平臺的間隙應符合圖1的要求。如果不能滿足這些要求,則應設置消除可能出現剪切、擠壓和墜落危險的其他裝置,如:聯鎖裝置。
1——起重機運行方向;
2——起重機平臺;
3——固定通道。
a——b1或b2。
a 剪切狀態:
50mm≤a,≤100mm;
400mm≤b,≤500mm。
b 擠壓狀態:
150mm≤a2≤250mm;
200mm≤b2≤300mm。
c 剪切和擠壓狀態(搭接狀態):
a3≤150mm;
c1≥150mm;
|d|<10mm(無搭接),或180mm≤|d|≤250mm(有搭接)。
圖1 通道平臺間隙
3.2.3 起重機上的備用通道
3.2.3.1 總則
司機或維護人員進入司機室的通道可以設置在起重機結構上。按照GB/T 24818.1-2009的要求,橋架上的任何高架走道或平臺、小車或大車上的走道均應在其所有的暴露面設置欄桿和圍護板(參見圖2和圖3)。在現有廠房內無法達到這些要求的情況下,則應設置備用安全裝置以便安全出入。
在無法采用樓梯或斜梯的場合,通往起重機橋架和小車的通道可以采用直梯。
單位為毫米

1——欄桿A;
2——欄桿B;
3——小車。
注:如果h+b≥1.25m或h≥0.70m,則可以不設欄桿B.
圖2 橋架主梁上工作走道的防護狀態
單位為毫米

1——欄桿A;
2——欄桿B;
3——立柱;
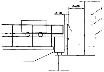
4——墻壁。
注1:如果a≥600mm,則欄桿A可以不設;如果a≥1000mm,則欄桿B可以不設或只設欄桿A。
注2:護欄距電氣部件的距離大于等于100mm并小于500mm時,為解決安全問題,固定平臺護欄應設置兩根中間橫桿以防止雙腳踏入危險區域。此外,為避免發生擠壓危險,可將護欄高度分為三階,以便在護欄未設開口處能向起重機方向翻越。
圖3 廠房上的工作走道 防護狀態
以上為標準部分內容,如需看標準全文,請到相關授權網站購買標準正版。
-
IG541混合氣體滅火系統
IG541混合氣體滅火系統:IG-541滅火系統采用的IG-541混合氣體滅火劑是由大氣層中的氮氣(N2)、氬氣(Ar)和二氧化碳(CO2)三種氣體分別以52%、40%、8%的比例混合而成的一種滅火劑 -
二氧化碳氣體滅火系統
二氧化碳氣體滅火系統:二氧化碳氣體滅火系統由瓶架、滅火劑瓶組、泄漏檢測裝置、容器閥、金屬軟管、單向閥(滅火劑管)、集流管、安全泄漏裝置、選擇閥、信號反饋裝置、滅火劑輸送管、噴嘴、驅動氣體瓶組、電磁驅動 -
七氟丙烷滅火系統
七氟丙烷(HFC—227ea)滅火系統是一種高效能的滅火設備,其滅火劑HFC—ea是一種無色、無味、低毒性、絕緣性好、無二次污染的氣體,對大氣臭氧層的耗損潛能值(ODP)為零,是鹵代烷1211、130 -
手提式干粉滅火器
手提式干粉滅火器適滅火時,可手提或肩扛滅火器快速奔赴火場,在距燃燒處5米左右,放下滅火器。如在室外,應選擇在上風方向噴射。使用的干粉滅火器若是外掛式儲壓式的,操作者應一手緊握噴槍、另一手提起儲氣瓶上的


